
Año: 2022 (concurso Arquia Becas XXIII)
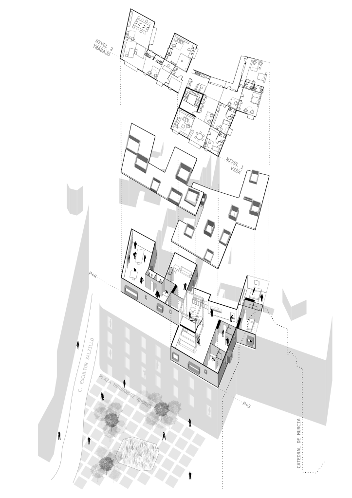
Ubicación: Plaza Hernández Amores, Murcia
Superficie: 223,5 m2
Este proyecto nace de una vista, fruto de la superposición de diferentes arquitecturas que mantienen un diálogo de contraposición. El resultado es algo único.
Es por esto que la intervención no crea un “lugar”; es este el que crea el edificio.
Una pieza unitaria se asienta sobre las cubiertas de unas preexistencias, rellenando un espacio desaprovechado que mira hacia la plaza Hernández Amores y dándole valor a lo existente.
La piel envuelve al edificio, que al mismo tiempo es perforada. Estas perforaciones se estiran y atrapan la luz, creando altares que elevan al habitante y convierten el espacio en un “lugar” de inspiración.

Un núcleo de comunicación existente crea el nexo de unión entre lo nuevo y lo viejo, atando un volumen ligero a estas preexistencias pesadas.
La intervención se plantea a dos niveles: el primero para vivir y el segundo para trabajar. Actividades que requieren al mismo tiempo proximidad y separación, con unas visuales completamente diferentes y adaptadas a ambos contextos.


