
Manifiesto visual del proyecto “Aleph. Palacio de congresos en la isla de Lanzarote”.
Lanzarote es una de las islas que conforman el archipiélago canario. A día de hoy se debate entre una dualidad: la inevitable transformación turística y la conservación de un pasado natural. Esta situación compone la realidad local; una delicada contraposición entre Sur y Norte.
En el medio de esta lucha entre lo turístico y lo oriundo, aparece la capital: Arrecife.
La ciudad ha experimentado una pérdida de identidad que ha afectado a su desarrollo. Esta involución la ha llevado a tener un pasado olvidado y un futuro incierto.
Una mirada única: Fernando Higueras y Álvaro Siza

La Arquitectura es una disciplina que avanza gracias a la obra de figuras referentes. Es por ello que, siguiendo este axioma, se plantea la investigación sobre Fernando Higueras y Álvaro Siza.
El objetivo de la investigación es poner en valor la obra artística y arquitectónica de ambos personajes, focalizando la investigación en una etapa cronológica singular: sus primeros años como profesionales.
Este trabajo propone una línea de investigación diferente. Mediante el análisis comparativo se busca una perspectiva inédita hasta ahora, mostrando los puntos comunes en la cronología y obra de ambos.
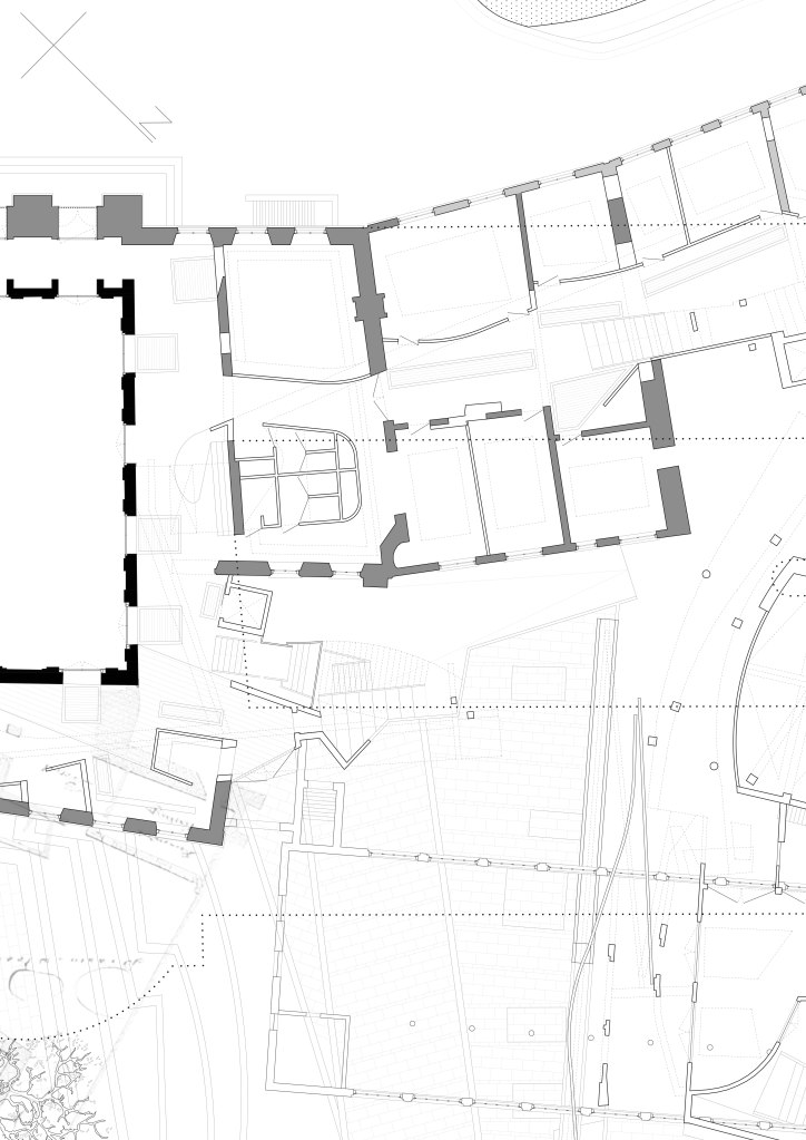
Palimpsesto del ayuntamiento de Utrech

Trabajo de investigación sobre la historia y evolución del ayuntamiento de Utrech desarrollado en la asignatura Arquitecturas en Arquitecturas (MArqEtsaB) en colaboración con Andreu Ramírez.
Se estudian las capas de la historia del edificio mediante el redibujado de los diferentes proyectos que se superponen y cómo estos afectan al proyecto desarrollado por Enric Miralles y Benedetta Tagliabue.
El resultado final es un dibujo original acompañado de una memoria escrita que explica pormenorizadamente las etapas y cambios del edificio, a la vez que las fases de la investigación y la experiencia durante el curso.